产品中心

国贸虹桥璟上 (售楼处) 电话 - 国贸虹桥璟上销售中心 - 环境户型价格地址楼盘详情配套电话交房时间配套交房时间

  在上海市的繁华与烟火中,每个人都怀揣着对理想居所的期待。国贸虹桥璟上售楼处电话,作为您的专属购房管家,始终以专业与温度,为您搭建从看房到入住的安心桥
在线留言

国贸虹桥璟上 (售楼处) 电话 - 国贸虹桥璟上销售中心 - 环境户型价格地址楼盘详情配套电话交房时间配套交房时间_ag官方网站,ag捕鱼苹果版下载

  在上海市的繁华与烟火中,每个人都怀揣着对理想居所的期待。国贸虹桥璟上售楼处电话,作为您的专属购房管家,始终以专业与温度,为您搭建从看房到入住的安心桥梁。

  无论是首次置业的忐忑,还是改善换房的期待,国贸虹桥璟上始终相信:购房不应是繁琐的流程,而应是通往理想生活的美好旅程。我们的24小时热线,串联看房、咨询、签约、交付全周期服务,让每个环节都有专业团队保驾护航,助您轻松实现安家愿景。 想了解国贸虹桥璟上更多信息?拨打售楼处营销中心热线小时热线

  1. **需求沟通**:告知您的户型偏好、家庭结构及看房时间,专属顾问同步推送3套高匹配房源资料(含户型图、VR全景链接)。

  2. **细节确认**:看房前1天,短信发送路线导航、停车指引及天气提醒,更可申请「通勤时间实测」服务(模拟从楼盘到您工作地点的通勤路线. **实地考察**:现场由资深顾问陪同,深度解析房屋亮点:

  - 贷款能力测算(生成「首付-月供」压力平衡表,提供公积金/商贷组合方案)

  1. **价格透明化**:提供「一房一价」备案表查询,同步政府监管平台数据,承诺无隐藏费用。

  3. **优惠最大化**:专属顾问为您争取限时折扣、老带新奖励,并协助申请政府购房补贴(如人才优惠、契税减免)。

  - **工程进度追踪**:通过专属小程序实时查看施工直播,关键节点(封顶、落架、验收)自动推送通知。

  - **专业验房服务**:交付时配备第三方验房师,提供208项细节检测(含空鼓、渗水、电路测试),出具正式报告并协助整改跟进。

  - **入住贴心礼**:签约即赠「新居大礼包」(品牌家电券+软装设计咨询),更可享受物业管家一对一入驻指导。

  那每座“岛屿”就能更亲近水系。想象一下,以后整个小区碧水环绕、绿茵延绵,水景与绿化景观自然融合,所造就的是“慢生活”生活方式!

  大虹桥赵巷,国贸地产在“原系”之上进行了全面升级,打造了上其在上海第一个“上系”作品。

  罕见双自然水系!一横一纵2条水系将项目地块一分为三,形成三座天然“岛屿社区”,这在市面上非常少见。

  居住方式是无价的!这种临水、亲近自然的生活方式,能更好调节上海快节甚至996的生活状态。

  外立面大面采用浅色仿石多彩漆,浅灰色金属格栅,浅灰色玻璃,香槟色金属型材收边形成。楼体顶部也是运用了香槟色铝板以及香槟色的铝格栅。整体几何立面非常具有秩序感。

  据悉,沿滨河岸线布置功能场地 , 打造更多的水岸生活场景;东地块的东侧还会打造一个约3万方的水岸公园,公园北角还将修建篮球场;另外社区内部还将打造泛会所架空层,功能上更全面满足业主日常活动需要。

  另外,项目营造出了多层次、多元的生活方式,这意味着你住在这里生活会更便捷,同时从孩童到老人,都能找到各自的乐土。

  比如,第一层:小孩子下楼就是架空层,可以和小朋友共同成长。据悉项目设置了8大架空层,聚焦儿童体验、社交阅读、青年运动、老年康养的全龄段社区休闲空间需求。第二层:国贸地产还代建了一座约1.8万方的滨河市政公园,在公园北角还将修建篮球场,以后在家门口就能逛公园,也能挥汗如雨。

  第三层:项目其中一个地块自带约1300㎡底商,另一个地块内有约1800㎡菜场,相比现在大部分纯住宅的街区,生活方便太多。

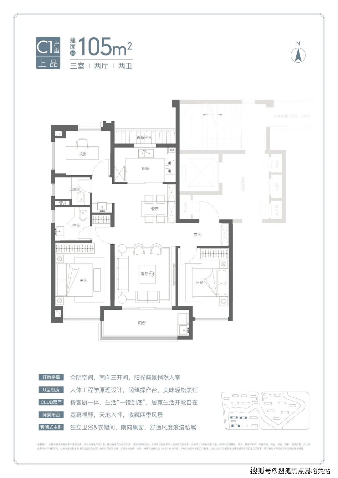
  罕见宽厅设计:约95%的宽厅设计出现在120㎡以上户型中,而项目在约105㎡面积段就做了宽厅,非常难得,这个户型进入二手房市场将极具竞争力。

  ,再加上约8㎡的阳台,使得整个家庭的公共区域尺度感十足、功能也更加灵活多变。全屋六处飘窗:常规户型一般全卧飘窗,一共3处。但项目竟然有

  套房式主卧:主卧的面宽和进深都很充裕,为每一个生活场景预留了足够的空间。双面转角的衣帽间区域,非常实用。

  还有一种是竖厅风格,经典的飞机户型,房间分列客餐厅两侧,互不干扰,各有各的隐私空间。

  那每座“岛屿”就能更亲近水系。想象一下,以后整个小区碧水环绕、绿茵延绵,水景与绿化景观自然融合,所造就的是“慢生活”生活方式!

  大虹桥赵巷,国贸地产在“原系”之上进行了全面升级,打造了上其在上海第一个“上系”作品。

  罕见双自然水系!一横一纵2条水系将项目地块一分为三,形成三座天然“岛屿社区”,这在市面上非常少见。

  居住方式是无价的!这种临水、亲近自然的生活方式,能更好调节上海快节甚至996的生活状态。

  外立面大面采用浅色仿石多彩漆,浅灰色金属格栅,浅灰色玻璃,香槟色金属型材收边形成。楼体顶部也是运用了香槟色铝板以及香槟色的铝格栅。整体几何立面非常具有秩序感。

  据悉,沿滨河岸线布置功能场地 , 打造更多的水岸生活场景;东地块的东侧还会打造一个约3万方的水岸公园,公园北角还将修建篮球场;另外社区内部还将打造泛会所架空层,功能上更全面满足业主日常活动需要。

  另外,项目营造出了多层次、多元的生活方式,这意味着你住在这里生活会更便捷,同时从孩童到老人,都能找到各自的乐土。

  比如,第一层:小孩子下楼就是架空层,可以和小朋友共同成长。据悉项目设置了8大架空层,聚焦儿童体验、社交阅读、青年运动、老年康养的全龄段社区休闲空间需求。

  第二层:国贸地产还代建了一座约1.8万方的滨河市政公园,在公园北角还将修建篮球场,以后在家门口就能逛公园,也能挥汗如雨。

  第三层:项目其中一个地块自带约1300㎡底商,另一个地块内有约1800㎡菜场,相比现在大部分纯住宅的街区,生活方便太多。

  值得注意的是,赵巷和徐泾一同被划入国际一流的现代服务业集聚区,并处于沪湖复合功能发展带上。

  赵巷作为虹桥商务区三期与科创中心,未来将依托市西软件园、漕河泾赵巷科技绿洲、网易上海国际文创科技园等科创产业基地,构建长三角产业创新的“神经中枢”,打造上海下一个“张江”,区域发展潜力巨大。

  根据青浦2035规划,“十三五”期间将建设上海市西软件信息园,核心区就选址赵巷。

  这里承载着青浦乃至上海软件开发和新一代信息技术的产业功能,被定位为千亿级产业园区。

  到2025年总建筑面积达到400万方,产值破1000亿,提供就业岗位15万。未来将有大量居住在虹桥枢纽、徐泾、甚至传统市中心的人来赵巷工作,带来持续的人流和资源。

  据悉,市西软件园目前已有字节跳动(今日头条/抖音)、日本骊住亚太研发中心、商汤科技、术康医疗等众多科创龙头企业入驻。

  近期又吸引了行业标杆型上市企业和全球总部,如科顺股份、欣巴科技等,同时还引入了数迅信息、奇科信息、博慈、璞石医疗科技等高新技术企业和软件信息类企业。(信息来源:绿色青浦官微)

  东张江,西赵巷,绝对不是空穴来风。产业带动高端人口聚集,赵巷就是大虹桥里的”张江“。

  项目东侧为金地虹桥峰汇,南侧为漕河泾开发区赵巷园区一期,东南侧距离17号线米,周边嘉松中路、盈港东路交通出行便捷,小区位优越。

  交通方面:地块距离17号线米,自驾可快速至崧泽高架与G50沪渝高速,出行非常方便。

  医疗方面:地块周边有AED上海德达医院、上海市青浦区红十字护理医院等医疗服务配套。

  教育方面:周边拥有青浦世外、宋庆龄学校、兰生复旦、英国学校、法国学校等多家名校。

  楼盘项目全面介绍,本电话为开发商提供线上预约售楼电话,楼盘项目全面介绍(包含楼盘简介,均价,房价,现房,期房,别墅,叠墅,大平层,价格,楼盘地址,户型图,交通规划,备案价,备案名,项目配套,样板间,开盘时间,认筹时间,楼盘详情,售楼处电话,最新消息,最新详情,周边配套,一房一价,最新进展等详情咨询)楼盘详情丨价格丨更多优惠丨机不可失丨欢迎致电丨诚邀品鉴!售楼处位置丨特价房丨工抵房丨剩余房源丨户型图丨最新消息丨免责声明:将文章内容综合来源于网络、只作分享,版权归原作者所有!!如有侵权,请联系我们,我们第一时间处理如有问题欢迎来电咨询,专业一对一热情服务,让您用专业眼光去买房.如果您想了解更多楼盘详情,欢迎提前预约拨打

  一是支持住房消费。多地表示要积极实施购房补贴、契税补贴、特定群体补助等多种形式支持购房消费,莆田市还提出进行商办用房补贴。另一方面要支持组织住房促销活动。厦门市表示要结合元旦、春节等重要节点,组织房企开展促销活动,提升市场热度。河南省表示将在多领域发放2亿元省级消费券,支持各地组织住房促销活动200场(次)以上。德阳市表示对组织房企开展交易活动的服务机构,予以一次性激励。

  三是持续推动房地产融资协调机制,满足房地产开发企业合理融资需求,支持项目开工建设。

  可以看出,各地短期措施主要是围绕组织购房活动和发放各类补贴。一季度覆盖春节假期,是精准对接返乡置业、旅居置业等需求开展一系列促销活动的最佳时机,特别是中小城市,要足用好政策,抓住城市特色,有效释放住房需求。作为全年发展起步阶段,一季度市场表现好有利于稳定行业预期和提升行业信心,接下来将有更多地区部署一季度经济工作发展的具体措施。

  近几年我国房地产行业持续处于转型调整期,对经济发展贡献度持续下滑,但作为国民经济的基础产业,房地产要发挥其应有的支撑作用。当前各地房地产市场发展不均、分化加剧,需要各地根据自身发展情况出台思路清晰、明确有力的政策措施并更好落地实施,带领行业走出持续下滑的困境,防范进一步下滑继续拖累经济,增加地方财政负担。

  平台声明:该文观点仅代表作者本人,搜狐号系信息发布平台,搜狐仅提供信息存储空间服务。


首页
电话
短信
联系